| Col_0 |
|---|
| Studienauftrag 2. Rang, 2006 |
| Zusammenarbeit mit Ryf Scherrer Ruckstuhl AG, Kreuzlingen |
| Landschaftsarchitekten: ARGE Schmid und Müller, Zürich |
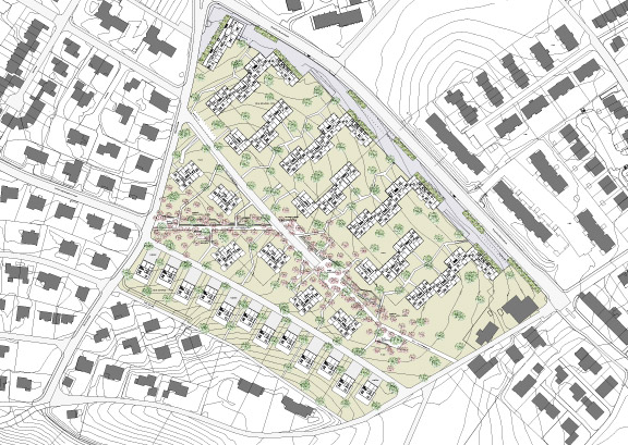
Die Weite des Areals und seine spezielle Topografie sind für den Ort charakteristische Elemente, die als planungsbestimmende Merkmale weiterentwickelt werden. Die Orientierung geht zur Mitte des Areals, wo eine leichte Senke einen Wasserlauf andeutet, die als zentrales
aussenräumliches Element betrachtet wird.
Das Gebiet wird parallel zur Thundorferstrasse in drei Streifen unterteilt, die etwa gleiche Breite haben wie die benachbarten Zeilen. Dies ergibt eine Gliederung in Baufelder, abgestimmt mit den Zonengrenzen, welche die Vorgaben liefern für eine Strukturierung des Gebiets und der Verteilung der Baumasse. Die einzelnen Streifen erhalten innerhalb des Areals ihre spezifische Massstäblichkeit, bauliche Dichte und charakteristischen Qualitäten. Die Wohnungen der verdichteten Bauweise: Es wird ein vielfältiger Wohnungsmix von 2.5- bis 5.5 Zimmer-Wohnungen mit unterschiedlichsten Grössen angeboten, die individuelle Wohnbedürfnisse abdecken können. Den meisten Wohnungen gemeinsam ist ein durchgehender Wohn-Ess-Bereich, mehrheitlich nach Westen orientierte Schlafzimmer und innenliegende Nasszellen und Nebenräume. Durch die Versetzung der Baukörper untereinander entstehen zusätzliche Wohntypen über Eck, mit interner Treppe und Belichtung von dritter Seite.


