| Col_0 |
|---|
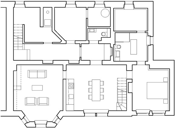
| Planung und Ausführung Umbau 2021 |
Dieser Umbau zeigt exemplarisch, wie aus einer anfänglichen geringfügigen Absicht ein grösseres Projekt heranwuchs, das heute eine komplett neue Wohnsituation darstellt. Am Anfang stand der Wunsch der Bauherrschaft, zukünftig auf Oel zur Energieerzeugung zu verzichten. Durch den Abbruch des alten Oeltanks wurde auf der Hangseite des Gartengeschosses ein zusätzlicher Raum frei, der wiederum zu verschiedenen Anpassungen, Nutzungsverschiebungen und Raumoptimierungen führte. Schliesslich entwickelte sich aus drei Zimmern eine neue, eigenständige Wohnung mit gegen 50% mehr Wohnfläche, zwei Nasszellen und einem Abstellraum, ohne dass sich am äusseren Volumen etwas verändert hätte. Gleichzeitig wurde auch die Gebäudehülle energetisch saniert mit neuem Bodenaufbau, angepasster Perimeterdämmung und neuen Fenstern.
Der Schlüssel zu dieser Wertsteigerung sind verschiedenen Nutzungsüberlagerungen, bzw. Mehrfachnutzungen derselben Fläche:
- Das Büro wird ein Lager wird ein Keller wird ein Bastelraum…
- Das Schlafzimmer wird ein Büro wird ein Musikzimmer wird ein Gästezimmer…
- Die Nasszelle wird ein Korridor wird eine Ankleide…
- Der Cheminéeofen wird eine Sitzbank…
- Die Treppe wird ein Wohnungsteiler…
- Die Küchenzeile wird eine Ess- und Getränkeausgabe für die Gartenparty…
- Der Garten wird ein Wohnzimmer…
Die gesamte Wohnung inklusive Gartensitzplatz kann vermietet oder über eine interne Treppe zur oberen Wohnung dazugeschlagen werden.


