| Col_0 |
|---|
| Planung und Ausführung 2007 |
| Zusammenarbeit mit Dany Waldner AG, Zürich |
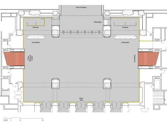
Für die Uhren- und Schmuckmesse BaselWorld 2007 wurde für das Foyer der Halle 1 ein komplett neuer Auftritt gesucht. Dieser Raum ist Kreuzungspunkt, Aufenthaltszone, Info-Point und Vorraum zur grössten und bedeutensten Halle der Messe Basel. Hier taucht der Besucher bereits ein in die glamouröse Welt der global agierenden Luxusmarken.
Der gestalterische Eingriff basiert auf der Erkenntnis, dass der bestehende Raum gute Proportionen aufweist und ein angenehmes Gefühl vermittelt. Durch zwei einfache Massnahmen wird er neu interpretiert und lesbarer gemacht: 1. Die raumbegrenzenden Wände werden mit hellen, textilen, „weichen Kissen“ belegt und ihre verschiedenartigen Nischen geschlossen. 2. Der Durchgang zur Halle und die beiden seitlichen Treppenaufgänge werden als Torsituationen ausgebildet, die in den Raum vorstossen und aus dunklen, glänzenden, „harten Platten“ gefügt sind. Die Absicht ist sofort erkennbar: Der Besucher soll einerseits geführt werden, andererseits soll er sich einfach im Raum aufhalten und sich wohl fühlen können. Links und rechts des Hauptzugangs befinden sich als einzige Raum-Möblierung hinterleuchtete Info-Desks, wo die Besucher die nötigen Auskünfte erhalten.
Das Licht wird indirekt, über die Decke abstrahlend geführt. Zusammen mit textilen Bodenbelägen auf dem Foyerboden und den Treppenläufen entsteht eine gediegen-museale Atmosphäre.
Planung und Ausführung zusammen mit Dany Waldner AG Projektentwicklung und Management.


