| Col_0 |
|---|
| Planung und Ausführung 2015-2018 |
| Zusammenarbeit mit mépp ag, Zürich |
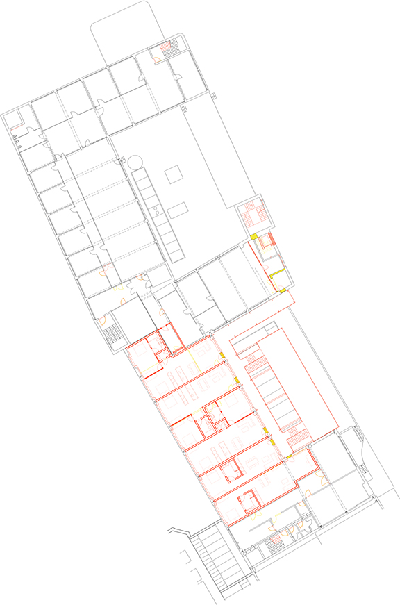
Der Gestaltungsplan für das Areal “Im Moos” sieht 7 Baufelder und verschiedene Freiflächen vor. Das Baufeld B2 ist mit Abstand das grösste und wurde mit einer gemischten Gewerbe-Wohnnutzung festgelegt. Der bestehende Baukörper in Form eines liegenden E’s ist über die Jahrzehnte mehrfach umgebaut und erweitert worden. Er beinhaltete früher Produktions- und Lagerflächen und ist heute Standort für verschiedene kleinere und grössere Dienstleistungsbetriebe.
Das Projekt sieht eine teilweise Umnutzung auf zwei Geschossen, sowie eine Dachaufstockung über die gesamte Fläche des Baukörpers vor. Damit wird der Gewerbebau um insgesamt 25 Wohnungen und diverse Nebenräume erweitert.
Die Wohnungen innerhalb des Volumens sind als durchgängige Lofts mit minimalen Raumunterteilungen und einem zentralen Kern für Küche und Nasszellen konzipiert. Sie werden über aussenliegende Treppenanlagen und Laubengänge erschlossen. Der Ausbau ist bewusst schlicht und industriell gehalten. Es werden beispielsweise keine privaten Aussenräume zur Verfügung gestellt, die vorgelagerten Erschliessungsflächen dienen als halb-privat nutzbare Zonen.
Die Aufstockung ist ein reiner Holzbau. Stahlträger spannen über die gesamte Gebäudetiefe und leiten die Kräfte auf die darunterliegenden Fassadenstützen. Zusammen mit Sekundär- und Tertiärträger bilden Sie einen Tisch, worauf die Wohnungen frei eingeteilt werden konnten. Die Erschliessung erfolgt über eine in einen ehemaligen Tankraum eingebaute Treppen- und Liftanlage. Die einzelnen Wohnungen sind sehr unterschiedlich organisiert. Die Mehrzahl weist durchgängige Wohn-Essbereiche mit einer vorgelagerten Terrasse auf. Die restlichen Wohnungen bieten auf ihren Dächern grosszügige private Aussenräume mit Rundumsicht an.


